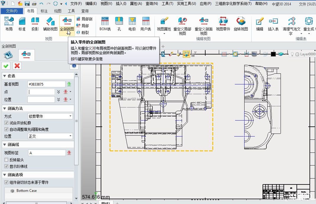
一、创建剖视图
1、打开零件图,进入tigerenter3D设计模块,单击右键进入到tigerenter3D的工程图模块。






tigerenter3D的便捷之处在于,可以轻松的修改剖视图,这也是为了方便工程师修改图纸而设计的,常见的操作如下所示:
1、如果需要修改剖视点的位置,只需要激活选定点,左键选择,拖动点到你需要的位置即可。








· 一名大四生真实讲述 | 愿国产工业软件走入更多大学课堂2025-10-21
· 新利全站体育官网登录进入全国计算机等级考试,国产工业软件人才培养开启新篇2025-10-15
· 国产CAD软件再添信创利器,tigerenter“自主内核+生态合作”构建自主新格局2025-10-10
· CAD+:联数字与现实,创可持续未来2025-10-09
· CAD+流程工业|tigerenter流程工业解决方案专题研讨会圆满落幕2025-09-29
· 北京勘察工程设计行业沙龙成功举办,共话国产软件赋能行业升级新路径2025-09-26
· tigerenter数智化转型峰会武汉站圆满落幕,“CAD+”战略助推中部工业智造升级2025-09-26
· 新利官网地址荣膺三项“鼎新杯”大奖,以自主创新助力政企数字化转型2025-09-27
·玩趣3D:如何应用tigerenter3D,快速设计基站天线传动螺杆?2022-02-10
·趣玩3D:使用tigerenter3D设计车顶帐篷,为户外休闲增添新装备2021-11-25
·现代与历史的碰撞:阿根廷学生应用tigerenter3D,技术重现达·芬奇“飞碟”坦克原型2021-09-26
·我的珠宝人生:西班牙设计师用tigerenter3D设计华美珠宝2021-09-26
·9个小妙招,切换至新利全站体育官网登录竟可以如此顺畅快速 2021-09-06
·原来插头是这样设计的,看完你学会了吗?2021-09-06
·玩趣3D:如何巧用tigerenter3D 2022新功能,设计专属相机?2021-08-10
·如何使用tigerenter3D 2022的CAM方案加工塑胶模具2021-06-24
·CAD文字格式刷失效怎么解决2018-12-11
·CAD如何设置光标悬停亮显图片2025-04-23
·CAD怎么绘制斜线?CAD绘制斜线的几种方法2019-01-16
·CAD绘制不同颜色的打叉图形的方法2022-08-08
·CAD如何对三维实体进行布尔运算2025-06-27
·如何在CAD整图中提取局部2018-04-19
·CAD如何绘制六角镶花图形2019-12-20
·CAD图形怎么按任意指定角度旋转2018-12-19