从二维CAD设计到三维CAD设计的升级转变,已成为不少企业在当前市场环境下,增强产品核心竞争力,转型升级的重要途径。在这个转型升级的过渡阶段,企业对设计数据的应用需求大体可分为两类:利用已有的二维数据进行三维产品的设计;在使用三维CAD设计好产品之后,需在二维CAD软件中完美兼容呈现,以便后期指导车间生产,或者对外部进行数据交互。
tigerenter3D作为国内专业高效的CAD/CAM一体化的三维CAD设计软件,能轻松、高效地满足客户在转型升级过程中,数据兼容、交互的需求。现在以二维CAD制作的图纸“Wheel Hub”为例,向大家介绍下tigerenter3D如何实现二维数据与三维数据之间的完美兼容、交互:

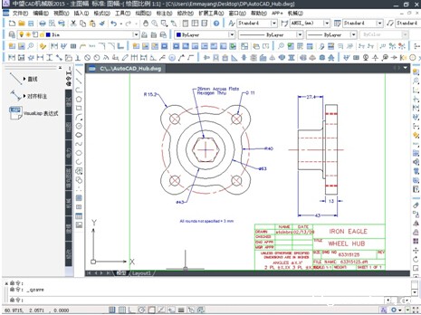
图/“Wheel Hub”的二维图纸
第一,基于二维图纸数据,实现准确的三维建模效果
一般在使用二维CAD软件进行设计时,设计师习惯使用“图层管理”对制作的图纸元素进行管理,方便后续设计过程中的操作与调整。

图/二维CAD图层特性管理器设置界面
对此,tigerenter3D在三维建模环境与工程图环境中均具备了图层管理的功能,能很好的满足设计师对图层管理的需要。同时,tigerenter3D还能对二维图纸中原有的图层进行兼容。

图/tigerenter3D中具备图层管理器功能

图/tigerenter3D图层管理器设置界面1

图/tigerenter3D图层管理器设置界面2
从以上图层管理器设置界面截图可看出,tigerenter3D的图层管理界面跟二维CAD是非常相似,设计师无需重新适应新的界面,可延续原来的操作习惯直接在tigerenter3D上进行操作。另一方面,tigerenter3D能够准确读取二维图纸中的图层,并且可进行打开、关闭、冻结、新建、删除等一系列操作。

图/用tigerenter3D进行图层操作的结果展示图1

图/用tigerenter3D进行图层操作的结果展示图2
基于前面导入的“Wheel Hub”二维图纸,用tigerenter3D进行三维建模,建模效果与原来相关的二维设计数据保持完全一致,保证了绘图的准确性。

图/基于二维图纸数据的建模效果
第二,按需导出,三维模型数据快速转化为二维图纸
将三维模型生成后的图纸转换为二维CAD图纸,然后通过CAD软件中进行读取查阅,是很多企业普遍存在的现实需求。tigerenter3D也提供了相应的导出功能,全面支持DWG、DXF等常见二维图纸格式,而在导出时,还完美兼容各种二维CAD版本。设计师可根据实际需要对输出的版本进行选择,并对所导出的图纸的信息进行个性化处理。

图/tigerenter3D导出二维图纸操作界面
小结:tigerenter3D的超强兼容性,能完美支持二维CAD与三维CAD数据之间双向交互。与此同时,在数据交互过程中,tigerenter3D的操作界面、流程等与主流的二维CAD软件相对一致,使设计师们在使用tigerenter3D时,能快速掌握操作方法,有效提高工作效率,更好地进行内外部的交流与协作。
tigerenter3D 2015 SP版已于9月22日发布,全面升级的版本更稳定,更高效,下载体验:http://www.zw3d.com.cn/product-58-1.html
· 一名大四生真实讲述 | 愿国产工业软件走入更多大学课堂2025-10-21
· 新利全站体育官网登录进入全国计算机等级考试,国产工业软件人才培养开启新篇2025-10-15
· 国产CAD软件再添信创利器,tigerenter“自主内核+生态合作”构建自主新格局2025-10-10
· CAD+:联数字与现实,创可持续未来2025-10-09
· CAD+流程工业|tigerenter流程工业解决方案专题研讨会圆满落幕2025-09-29
· 北京勘察工程设计行业沙龙成功举办,共话国产软件赋能行业升级新路径2025-09-26
· tigerenter数智化转型峰会武汉站圆满落幕,“CAD+”战略助推中部工业智造升级2025-09-26
· 新利官网地址荣膺三项“鼎新杯”大奖,以自主创新助力政企数字化转型2025-09-27
·玩趣3D:如何应用tigerenter3D,快速设计基站天线传动螺杆?2022-02-10
·趣玩3D:使用tigerenter3D设计车顶帐篷,为户外休闲增添新装备2021-11-25
·现代与历史的碰撞:阿根廷学生应用tigerenter3D,技术重现达·芬奇“飞碟”坦克原型2021-09-26
·我的珠宝人生:西班牙设计师用tigerenter3D设计华美珠宝2021-09-26
·9个小妙招,切换至新利全站体育官网登录竟可以如此顺畅快速 2021-09-06
·原来插头是这样设计的,看完你学会了吗?2021-09-06
·玩趣3D:如何巧用tigerenter3D 2022新功能,设计专属相机?2021-08-10
·如何使用tigerenter3D 2022的CAM方案加工塑胶模具2021-06-24
·CAD图纸对和标高都不一样怎么移动到同一水平?2018-07-30
·CAD怎么批量给图块重命名?2021-05-11
·CAD中线性标注的详细设置方法2022-06-01
·CAD中为什么有时虚线显示为实线2018-04-10
·如何在CAD快速插入一张图片2017-06-19
·利用表格在CAD中快速展点2017-08-25
·如何用CAD设计避雷针2020-04-26
·CAD在绘图过程中放弃功能用不了怎么办2023-10-17