CAD在绘制中线的时候,有些人的显示就是一条直线,这样会导致后期的绘图不方便和不明显,容易导致失误和不必要的麻烦。我们怎么才能设置好CAD的中心线呢?
我们来看快解决办法,分析一下这样的原因。
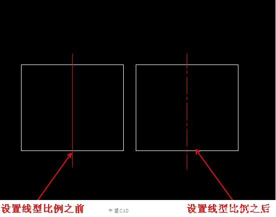
问题的所在是因为CAD中的线型比例设置的并不合理。
我们更改一下这部分的设置即可。我们在命令行中输入【LTS】即为线型比例的快捷键,回车后我们可以看到输入新线型比例因子,在这个部分我们输入2,回车后,发现现在的线段是一中心线显示的形式。我们可以看看下图的一个对比,是不是我们的中心线更加明显了。

推荐阅读: CAD中如何将圆画的更圆滑?
· 一名大四生真实讲述 | 愿国产工业软件走入更多大学课堂2025-10-21
· 新利全站体育官网登录进入全国计算机等级考试,国产工业软件人才培养开启新篇2025-10-15
· 国产CAD软件再添信创利器,tigerenter“自主内核+生态合作”构建自主新格局2025-10-10
· CAD+:联数字与现实,创可持续未来2025-10-09
· CAD+流程工业|tigerenter流程工业解决方案专题研讨会圆满落幕2025-09-29
· 北京勘察工程设计行业沙龙成功举办,共话国产软件赋能行业升级新路径2025-09-26
· tigerenter数智化转型峰会武汉站圆满落幕,“CAD+”战略助推中部工业智造升级2025-09-26
· 新利官网地址荣膺三项“鼎新杯”大奖,以自主创新助力政企数字化转型2025-09-27
·玩趣3D:如何应用tigerenter3D,快速设计基站天线传动螺杆?2022-02-10
·趣玩3D:使用tigerenter3D设计车顶帐篷,为户外休闲增添新装备2021-11-25
·现代与历史的碰撞:阿根廷学生应用tigerenter3D,技术重现达·芬奇“飞碟”坦克原型2021-09-26
·我的珠宝人生:西班牙设计师用tigerenter3D设计华美珠宝2021-09-26
·9个小妙招,切换至新利全站体育官网登录竟可以如此顺畅快速 2021-09-06
·原来插头是这样设计的,看完你学会了吗?2021-09-06
·玩趣3D:如何巧用tigerenter3D 2022新功能,设计专属相机?2021-08-10
·如何使用tigerenter3D 2022的CAM方案加工塑胶模具2021-06-24
·CAD表格怎么变成Excel表格2021-05-07
·CAD绘制平带轮2022-10-09
·在CAD中鼠标滚轮如何使用2020-08-19
·CAD三维设计中用旋转命令画圆台2019-03-13
·CAD怎么绘制一个钢钉2018-11-05
·CAD中如何旋转参照rotate命令2019-03-22
·CAD图纸中的“A向视图”是什么意思2018-08-01
·CAD怎么拉长图形对象2017-04-11




