我们在利用CAD来绘制我们的墙线的时候,我们会用那种笨拙的方法。那就是一根根的画出我们的墙线,这种方式只是适合与初学者。当我们能够熟练的操作CAD的时候,我们可以利用CAD的多线命令来快速的绘制我们的墙线了。
下面我们来看看如何操作,大家有需要可以参考参考
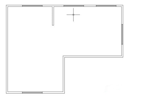
不想要一根根来画墙线的话,咱们就利用CAD中的多线命令来画吧,参考下图。

1、先在cad中画出轴线,形成轴线网。

2、画完轴线网后,在命令行输入“mlstyle”命令敲回车键。

3、弹出新建多线样式,单击新建填写多线名称单击继续。
4、弹出新建多线样式窗口,在图元中点击添加按钮,将一项偏移改为1.2中间为0第三项改为-1.2点击确定。
5、设置完成后,在命令行输入“ml”命令敲回车键。

6、命令执行后,输入对正j将对正输入类型改为无,在输入比例s将输入多线比例改为1。


7、设置完成后,在轴线网中制定多线起点,单击起点后按照图纸要求画出墙线。

8、墙线全部画完后根据图纸进行修剪就行了。


注意事项:墙线偏移要根据实际墙厚来设置哦。
推荐阅读:CAD如何将三维实体旋转并且加厚
· 新利官网地址连续三年蝉联第一,2D/3D“双冠加身”引领行业全域突破2025-10-28
· 一名大四生真实讲述 | 愿国产工业软件走入更多大学课堂2025-10-21
· 新利全站体育官网登录进入全国计算机等级考试,国产工业软件人才培养开启新篇2025-10-15
· 国产CAD软件再添信创利器,tigerenter“自主内核+生态合作”构建自主新格局2025-10-10
· CAD+:联数字与现实,创可持续未来2025-10-09
· CAD+流程工业|tigerenter流程工业解决方案专题研讨会圆满落幕2025-09-29
· 北京勘察工程设计行业沙龙成功举办,共话国产软件赋能行业升级新路径2025-09-26
·玩趣3D:如何应用tigerenter3D,快速设计基站天线传动螺杆?2022-02-10
·趣玩3D:使用tigerenter3D设计车顶帐篷,为户外休闲增添新装备2021-11-25
·现代与历史的碰撞:阿根廷学生应用tigerenter3D,技术重现达·芬奇“飞碟”坦克原型2021-09-26
·我的珠宝人生:西班牙设计师用tigerenter3D设计华美珠宝2021-09-26
·9个小妙招,切换至新利全站体育官网登录竟可以如此顺畅快速 2021-09-06
·原来插头是这样设计的,看完你学会了吗?2021-09-06
·玩趣3D:如何巧用tigerenter3D 2022新功能,设计专属相机?2021-08-10
·如何使用tigerenter3D 2022的CAM方案加工塑胶模具2021-06-24
·CAD绘制线段的时候为什么不显示线?2021-05-27
·CAD怎样删除打印中不需要的纸张尺寸 2025-08-08
·CAD如何添加光线照射2020-08-27
·如何用CAD绘制折断线2019-12-26
· CAD如何测量两点之间的距离和角度2017-05-16
·CAD机械版如何实现标题栏自动生成页码2024-06-03
·在CAD中能进行抠图吗?2017-09-13
·CAD缩放图形时不想缩放标注怎么办?2020-05-19




