制作尖角和圆角是CAD制图过程十分常见的操作,但对于CAD使用新手而言,常常会遇到想要建立尖角却建成圆角的情况,本文将给大家详细介绍CAD中使用FILLET命令建立尖角与与圆角的区别。
用FILLET命令画圆角:
1.用新利全站体育官网登录打开一张图纸文件,缩放到合适的显示位置;

2.在命令行中输入【FILLET】命令,按回车键确认开启;
3.在命令行中输入【R】,按回车确认;再输入【2】,按回车确认;这样就将倒圆角的半径设置成了2。
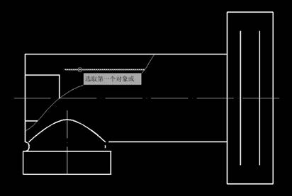
4.如果需要对多个对象进行倒圆角,可以再在命令行中输入【M】选择多个,这样处理完一个倒圆角后不需要再次启动Fillet命令就可以直接选择下一个倒圆角对象;

5.选择图示中的水平线作为第一个对象,再选择垂直线作为第二个需要倒圆角的对象。这样就完成了两条垂线之间的倒圆角,如图所示:



用FILLET命令画尖角:
1.再次在命令行中输入【FILLET】命令,按回车键确认开启;命令行中会弹出“当前设置”,由图可以看到当前半径设为了2;

2.选择水平线作为第一个倒圆角对象;如果此时直接选择第二个对象,则系统会新建一个半径为2的倒圆角,因此在选择第二个对象时,应该按住Shift键,同时再选择垂直的线段,则此时系统会以0作为半径,新建一个尖角,如图所示:


以上就是建立圆角与尖角的区别,你学会了吗?
推荐阅读:正版CAD
推荐阅读:CAD下载
· 一名大四生真实讲述 | 愿国产工业软件走入更多大学课堂2025-10-21
· 新利全站体育官网登录进入全国计算机等级考试,国产工业软件人才培养开启新篇2025-10-15
· 国产CAD软件再添信创利器,tigerenter“自主内核+生态合作”构建自主新格局2025-10-10
· CAD+:联数字与现实,创可持续未来2025-10-09
· CAD+流程工业|tigerenter流程工业解决方案专题研讨会圆满落幕2025-09-29
· 北京勘察工程设计行业沙龙成功举办,共话国产软件赋能行业升级新路径2025-09-26
· tigerenter数智化转型峰会武汉站圆满落幕,“CAD+”战略助推中部工业智造升级2025-09-26
· 新利官网地址荣膺三项“鼎新杯”大奖,以自主创新助力政企数字化转型2025-09-27
·玩趣3D:如何应用tigerenter3D,快速设计基站天线传动螺杆?2022-02-10
·趣玩3D:使用tigerenter3D设计车顶帐篷,为户外休闲增添新装备2021-11-25
·现代与历史的碰撞:阿根廷学生应用tigerenter3D,技术重现达·芬奇“飞碟”坦克原型2021-09-26
·我的珠宝人生:西班牙设计师用tigerenter3D设计华美珠宝2021-09-26
·9个小妙招,切换至新利全站体育官网登录竟可以如此顺畅快速 2021-09-06
·原来插头是这样设计的,看完你学会了吗?2021-09-06
·玩趣3D:如何巧用tigerenter3D 2022新功能,设计专属相机?2021-08-10
·如何使用tigerenter3D 2022的CAM方案加工塑胶模具2021-06-24
·CAD中线宽太密或者太宽了怎么办?2020-04-14
·CAD中添加字体样式2019-12-17
·如何调整CAD云线的弧长为相等状态?2024-01-23
·CAD布局的相关知识2017-09-07
·CAD画圆命令2016-10-31
·CAD切换图层的快捷键2020-02-24
·CAD添加填充区域的技巧2024-02-02
·CAD图形小区域删除技巧?2020-04-29




