CAD中注释性标注和一般标注有何不同
在使用CAD时,注释性可以让同一图形在不同比例的布局视口里文字和标注文字显示的高度保持一致。 使用注释性便可以不用繁琐地设置不同的全局比例和文字高度。
以标注为例:在标注样式(快捷键D)中,勾选“注释性”。

标注就是具有注释性的标注。
完成标注后,转至视口中,确保左边两个关于注释性的选项打开。
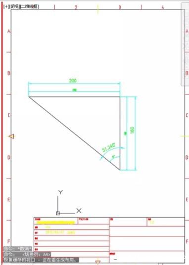
在下面的三角形例子中,两个标注中上面那个具有注释。

可以看到两个标注的文字高度是一样的,此时视口的比例是1:1。接下来更改视口比例至1:2。可以看到,不带注释性的标注跟着一起缩小了,带注释性的标注文字(还有箭头)相对图纸的高度并没有减小。

推荐阅读:CAD制图初学入门
推荐阅读:3D打印机
· 一名大四生真实讲述 | 愿国产工业软件走入更多大学课堂2025-10-21
· 新利全站体育官网登录进入全国计算机等级考试,国产工业软件人才培养开启新篇2025-10-15
· 国产CAD软件再添信创利器,tigerenter“自主内核+生态合作”构建自主新格局2025-10-10
· CAD+:联数字与现实,创可持续未来2025-10-09
· CAD+流程工业|tigerenter流程工业解决方案专题研讨会圆满落幕2025-09-29
· 北京勘察工程设计行业沙龙成功举办,共话国产软件赋能行业升级新路径2025-09-26
· tigerenter数智化转型峰会武汉站圆满落幕,“CAD+”战略助推中部工业智造升级2025-09-26
· 新利官网地址荣膺三项“鼎新杯”大奖,以自主创新助力政企数字化转型2025-09-27
·玩趣3D:如何应用tigerenter3D,快速设计基站天线传动螺杆?2022-02-10
·趣玩3D:使用tigerenter3D设计车顶帐篷,为户外休闲增添新装备2021-11-25
·现代与历史的碰撞:阿根廷学生应用tigerenter3D,技术重现达·芬奇“飞碟”坦克原型2021-09-26
·我的珠宝人生:西班牙设计师用tigerenter3D设计华美珠宝2021-09-26
·9个小妙招,切换至新利全站体育官网登录竟可以如此顺畅快速 2021-09-06
·原来插头是这样设计的,看完你学会了吗?2021-09-06
·玩趣3D:如何巧用tigerenter3D 2022新功能,设计专属相机?2021-08-10
·如何使用tigerenter3D 2022的CAM方案加工塑胶模具2021-06-24
·CAD如何美观地标注不同度数的角2021-11-10
·CAD中不能开启硬件加速功能的解决方法2024-08-12
·CAD中可以重复之前执行的命令吗?2017-07-11
·CAD打印时预留的边界如何取消2020-08-12
·CAD如何绘制蝶形封头?2022-07-08
·CAD怎么样让打印过的区域出现黑色2016-04-08
·用CAD三维实体更改视觉样式2019-12-11
·CAD怎么卸载或者重载图像2019-09-09




