CAD图纸一定需要比例的原因分析
小编认为,一张图纸就像是一份严谨又详细的产品说明书,其意义就在于将单个工作成果进行总结展示,并以此为依据,提供给各方进行协助配合,从而达到共同的目标。而比例这一特性,就是出于图纸严谨这一特性而产生的。下面以样例图纸为例,说明比例的含义:

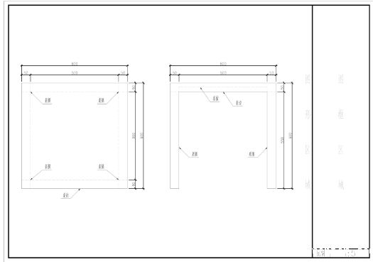
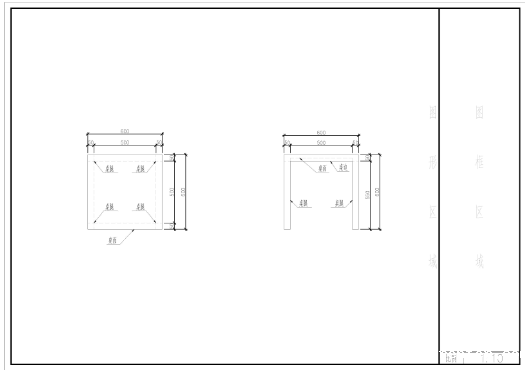
上图与下图为同一张桌子在不同比例的A3图纸下的样子,可以看到,在比例由1:5变成1:10后,桌子在图中的大小也变成了原来的1/2。需要注意的是,图中实体类的图元大小发生了改变,而如标注、说明文字等注释类的图元,其大小却是不变的.

假设一个制作家具的人拿到这份图纸后,不需要任何其他的面对面沟通,他就能够知道,我们需要制作一个方形的桌子 ,桌子变长均为600毫米,有四条腿,每条腿长550毫米,依靠四条宽高均为50毫米的桌边与桌面相连。其中,方形这个信息是由图中的实体形状线获得的,而尺寸由图中的尺寸标注上写的数字获取,每个东西分别是什么功能,由图中的说明文字获得解释,一份粗糙的说明书大概就完成了。
那么,在一份具有足够准确尺寸标注的图纸里,我们还需要按照比例来绘制这些图形的原因是什么?关键就是在于第一步的实体形状线,只有在按照比例绘制的图纸里,我们才能第一眼就对这个物体有一个直观的认识,比如这是一个正方形而不是长方形,比如这张桌子的桌面厚度与他的高度相比是非常小的,桌子下面有较为充裕的空间,避免了潜意识内的错误认识而引起协作各方不必要的工作量。
同时,出于节约纸张的目的,我们自然是想在一张图内放下实体形状越多越好,字体越小越好,比例的分母自然也是越大越好。然而,人眼的识别能力是有限的,过于微小的字体和图形,在阅读起来是极容易出现幻觉和误差的,所以,每张图比例的产生的需要根据图纸的大小、注释文字的多少进行合理的分配,在识别难易度与信息量之间找到一个平衡点。
推荐阅读:CAD中对齐和三维对齐的操作步骤
推荐阅读:3D打印机原理
· 一名大四生真实讲述 | 愿国产工业软件走入更多大学课堂2025-10-21
· 新利全站体育官网登录进入全国计算机等级考试,国产工业软件人才培养开启新篇2025-10-15
· 国产CAD软件再添信创利器,tigerenter“自主内核+生态合作”构建自主新格局2025-10-10
· CAD+:联数字与现实,创可持续未来2025-10-09
· CAD+流程工业|tigerenter流程工业解决方案专题研讨会圆满落幕2025-09-29
· 北京勘察工程设计行业沙龙成功举办,共话国产软件赋能行业升级新路径2025-09-26
· tigerenter数智化转型峰会武汉站圆满落幕,“CAD+”战略助推中部工业智造升级2025-09-26
· 新利官网地址荣膺三项“鼎新杯”大奖,以自主创新助力政企数字化转型2025-09-27
·玩趣3D:如何应用tigerenter3D,快速设计基站天线传动螺杆?2022-02-10
·趣玩3D:使用tigerenter3D设计车顶帐篷,为户外休闲增添新装备2021-11-25
·现代与历史的碰撞:阿根廷学生应用tigerenter3D,技术重现达·芬奇“飞碟”坦克原型2021-09-26
·我的珠宝人生:西班牙设计师用tigerenter3D设计华美珠宝2021-09-26
·9个小妙招,切换至新利全站体育官网登录竟可以如此顺畅快速 2021-09-06
·原来插头是这样设计的,看完你学会了吗?2021-09-06
·玩趣3D:如何巧用tigerenter3D 2022新功能,设计专属相机?2021-08-10
·如何使用tigerenter3D 2022的CAM方案加工塑胶模具2021-06-24
·CAD中如何设置文字以固定的字符间距排列2024-09-04
·CAD标注文字与标注线的距离怎么设置2016-02-26
·CAD面域创建技巧2020-03-04
·CAD中几个全局设置如何操作2020-09-10
·CAD如何使用图形搜索定位2023-03-27
·将PDF中的图形导入CAD后该如何调整其尺寸?2024-03-26
·CAD进行三维实体倒角的操作方法2025-03-03
·如何利用CAD进行属性块的编辑2023-10-20




