在CAD中,机械图样中的装配图的绘制通常采用两种方法。一种是直接利用绘图及图形编辑命令,按手工绘图的步骤,结合对象捕捉、极轴追踪等辅助绘图工具绘制装配图。这种方法光是读起来就感觉到很复杂,实际上,复杂是肯定的,而且容易出错,这就导致只能绘制一些比较简单的装配图。
第二种方法是“拼装法”。也就是先绘出各零件的零件图,然后将各零件以图块的形式“拼装”在一起,构成装配图。下面利用新利全站体育官网登录提供的集成化图形组织和管理工具,用“拼装法”绘制铣刀头装配图。可供不懂的朋友参考。
首先,在菜单栏选择[工具]——[设计中心]选项,打开设计中心选项板,如图所示。在文件列表中找到铣刀头零件图的存储位置,在“内容区”选择要插入的图形文件,如座体.dwg,按住鼠标左键不放,将图形拖入绘图区空白处,释放鼠标左键,则座体零件图便插入到绘图区。

插入左端盖。用上面一样的方法,以A点为基准点插入左端盖。注意要充分使用缩放命令和对象捕捉功能来使得插入更加准确。接下来将插入的图形块进行“分解”,可以利用“擦除”和“修剪”命令删除或修剪多余的线条。

插入螺钉。以B点为基准点插入螺钉,删除、将多余线条修剪掉。注意相邻两零件的剖面线方向和间隔,以及螺纹联接等要符合制图标准中装配图的规定画法。

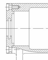
插入轴承。以C点为基准点插入左端轴承,并修改图形。

重复以上步骤,依次插入右端轴承、端盖和螺钉、带轮及轴端挡圈等,按规定画法进行绘制。
接下来绘制铣刀、键,插入轴端挡板等。画油封并对图形局部进行修改。
标注装配图尺寸。装配图的尺寸标注一般只标注性能、装配、安装等等一些重要尺寸。
编写序号。装配图中的所有零件都必须编写序号,其中相同的零件采用同样的序号,且只编写一次。装配图中的序号应与明细表中的序号一致。
绘制明细栏,明细栏中的序号自下往上填写。最后书写技术要求,填写标题栏。
推荐阅读:CAD中修改线性比例的操作方法
推荐阅读:新利体育客户端官网
· 一名大四生真实讲述 | 愿国产工业软件走入更多大学课堂2025-10-21
· 新利全站体育官网登录进入全国计算机等级考试,国产工业软件人才培养开启新篇2025-10-15
· 国产CAD软件再添信创利器,tigerenter“自主内核+生态合作”构建自主新格局2025-10-10
· CAD+:联数字与现实,创可持续未来2025-10-09
· CAD+流程工业|tigerenter流程工业解决方案专题研讨会圆满落幕2025-09-29
· 北京勘察工程设计行业沙龙成功举办,共话国产软件赋能行业升级新路径2025-09-26
· tigerenter数智化转型峰会武汉站圆满落幕,“CAD+”战略助推中部工业智造升级2025-09-26
· 新利官网地址荣膺三项“鼎新杯”大奖,以自主创新助力政企数字化转型2025-09-27
·玩趣3D:如何应用tigerenter3D,快速设计基站天线传动螺杆?2022-02-10
·趣玩3D:使用tigerenter3D设计车顶帐篷,为户外休闲增添新装备2021-11-25
·现代与历史的碰撞:阿根廷学生应用tigerenter3D,技术重现达·芬奇“飞碟”坦克原型2021-09-26
·我的珠宝人生:西班牙设计师用tigerenter3D设计华美珠宝2021-09-26
·9个小妙招,切换至新利全站体育官网登录竟可以如此顺畅快速 2021-09-06
·原来插头是这样设计的,看完你学会了吗?2021-09-06
·玩趣3D:如何巧用tigerenter3D 2022新功能,设计专属相机?2021-08-10
·如何使用tigerenter3D 2022的CAM方案加工塑胶模具2021-06-24
·如何在CAD中绘制斜剖线并保持文字镂空2023-03-07
·CAD如何画垂足线?2022-04-26
·CAD自定义龙腾冲压模具的图框的方法2024-09-06
·CAD的压印命令如何操作2021-11-09
·CAD只能在布局看见图形,在模型空间看不到2015-12-04
·如何使用CAD进行图块内图形颜色的修改2023-10-10
·CAD中套用图框的相关知识介绍2017-12-06
·CAD图形不等比例缩放的方法2021-10-12




